Kuvaus
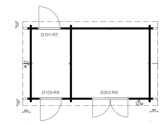
| Ulkomitat: | 5 x 3 m |
| Seinän korkeus: | 1,99 m |
| Harjan korkeus: | 2,43 m |
| Seinän paksuus: | 88 mm |
| Sisäpinta-ala: | 15 m² (10 m² 5 m²) |
| Katto: | Noin 23 m², 18 mm |
| Lattia: | 28 mm |
| Ovet: | A) tuplaovi D203-RX Q6; B) D103-RX; C) D101-RT |
| Materiaali: | Pohjoismainen kuusi, käsittelemätön |
| Lisätietoa: | Kyllästetty asennusraami, myrskyrimat, kokoonpanovälineet, puuovet sekä yksi ovi ikkunalla, sylinterilukko, tuoteopas, 5 vuoden takuu. |











Arviot
Tuotearvioita ei vielä ole.